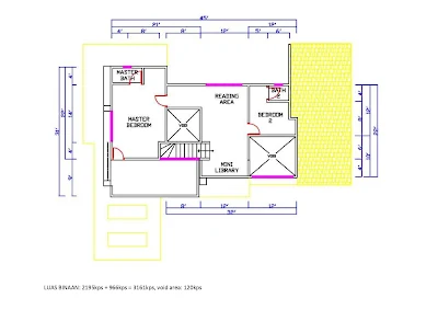
Pelan rumah 2 tingkat 4 bilik tidur 4 bilik air 3161 kaki persegi
Pelan rumah banglo 2 tingkat 4 bilik tidur 4 bilik air seluas 3161 kaki persegi!
Pelan rumah yang kami berikan kepada anda ini adalah draf dari pelanggan Nas Nuri Construction yang tidak diterima. Lukisan akhir yang memenuhi citarasa pelanggan kami & telahpun dibina tidak akan kami kongsikan untuk memastikan rekaan rumah tersebut eksklusif kepada pelanggan tersebut. Selain juga faktor keselamatan.Terdapat 1 kelebihan utama membina rumah di atas tanah sendiri yang tidak dapat kita perolehi dengan membeli rumah, kita boleh menghasilkan pelan rumah impian dari tiada kepada ada sama dengan apa yang dibayangkan.
Kami di Nas Nuri Construction mampu anda merealisasikan semua ini dengan tenaga kerja pakar seperti arkitek dan perekabentuk dalaman berpengalaman.
Mesti baca; Mahu membina banglo idaman yang berkualiti? Serahkan saja pada yang pakar. Nas Nuri Construction, Kontraktor rumah banglo bermutu.
Perlukan harga kos membina pelan rumah ini?
Hubungi Nas Nuri Construction Sdn Bhd, kami akan berikan anda HARGA dan SPEC BINAAN pelan rumah tersebut.
Selesai sudah perkongsian kali ini. Terima kasih kerana membaca artikel ini sehingga ke hujungnya.
Perlu di ingat, pelan ini hanyalah cadangan sahaja kerana setiap pelanggan yang datang menemui kami mempunyai bentuk & saiz tanah yang berbeza. Jenis tanah & topogrofi tanah juga tidak sama.
Jadi, kalau anda mempunyai impian untuk membina rumah di atas tanah sendiri, memang banyak persediaan yang perlu di lakukan.
Jika anda perlukan bantuan untuk membina rumah banglo sesebuah di Selangor & kawasan tertentu di Negeri Sembilan boleh hubungi staf kami Encik Fairul di 0193487372.





